In the middle of the
Hungarian soul

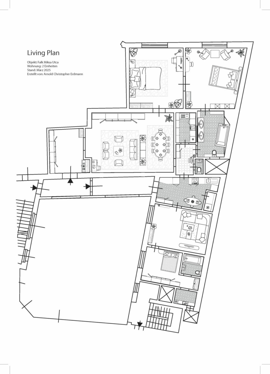
Falk Miksa Strasse 8 4/8 & 4/8b
Budapest

Description

Great spot near the Hungarian Parliament – a spacious and elegant turn-of-the-century apartment.
Two units on the 4th floor, which can be used together or separately:

  • 1x 151 m², H-1055 Falk Miksa utca 8, 4th floor, Apartment 8
  • 1x 36 m², H-1055 Falk Miksa utca 8, 4th floor

The apartments feature air conditioning, central heating, modern kitchens, and two bathrooms.
The new floor plan reflects the successful transformation from office space into stylish living quarters, combining classic charm with contemporary comfort.

Position & Infrastructure

Information

Living Space

187 m²

Contact

Mr Laszlo Szever, 0036704245582

Request